1. Introduction
Farai un vers de dreit nien
Guillaume IX d'Aquitaine
How have the suburbs of metropolitan cities, as we now know them, come to take shape? Regardless of the peculiar processes that may differ from place to place, there are some broad processes prompted by economic and demographic change that can be verified across the periphery, in general, and which usually disclose the history of socio-ecological transition (Winiwarter et al., 2016) of each metropolitan region. The aim of this paper is to highlight some of these clues to a transition history of the Lisbon Metropolitan Region, by focusing on a specific settlement - the hamlet of Pirescoxe, in the municipality of Loures - and demonstrating the particular, but also the general processes whereby it ceased to be a distant rural settlement cut off from the life of the capital city and, in the mid-20th century, came to be part of an enlarged oil-stain suburbia through which the modernization of the city’s economic and social fabric was achieved.
Modern transformation was a recent but highly concentrated moment in the Lisbon Region, which remained mostly agrarian until the mid-20th century (Marat-Mendes & Cabrita, 2015; Marat-Mendes et al., 2021). Theirs was a small-scale and artisanal economy, and although they had relatively eased access to Lisbon, the links with the city were not obvious, nor were they expressed in the territory, which, in this periphery, still had more in common with the countryside than the city (Salgueiro, 2001; Marat-Mendes et al., 2023).
Since 1945, many villages around Lisbon have been aggressively overridden by conurbations. Since much of this modern growth was completely unplanned, there were often no concerns with eventual hallmarks of historical memory. The suburbanization of Lisbon happened under pressure, but often lacks any value beyond the merely utilitarian one. As the metropolitan region moves into the future, its attitude towards its past and its ruins must be assessed and questioned, especially in those places filled with speculative construction, which Lisboners have come to perceive as ‘uncharacterized.’ History thus needs not only to be reexamined from the periphery standpoint, but also as something which left traces on the territory, which may well be lost. This paper is a contribution to think about these problems and suggest a perspective from which to observe the historical importance of Lisbon’s metropolitan periphery.
2. Context and key concepts
By the mid-20th century, Portugal remained a backward region in the context of modernized Europe, and only then did it start a process of late industrialization and concomitant urbanization. Most of the country’s population still lived off artisanal agriculture, and industrial development was not only scant - often consisting of manufacture - but also highly concentrated in Porto, Lisbon and Setúbal, due to their infrastructural development, unparalleled in the inland and sprawling to the immediate outskirts of those cities due to lower land values (Folgado, 2012; Marat-Mendes et al., 2021).
In the Lisbon region (with official statute since 1959), the process of industrialization started slowly in the early 19th century, with factories set up in the areas of Alcântara and Olivais, then located outside the Lisbon city limits. The administrative reform of 1885 extended the city to these areas and redefined the peripheral municipalities where some small industrial zones were emerging, such as Dafundo, Amadora (then called Porcalhota), Sacavém and the more distant town of Alhandra. In 1856, the first Portuguese railroad track was opened, connecting Santa Apolónia, in southeast Lisbon, to Carregado, a town in upstream Tagus River. Along with the National Road to the north (settled over an old Roman road) and the river, the railroad turned the area from eastern Lisbon to Vila Franca de Xira into an especially attractive location for industry (Folgado, 2012). Indeed, industrialization clearly grew in the 1930s and 1940s. Alongside the factories, a set of new settlements also started to take form, sometimes out of extant villages and hamlets, filling the open spaces of ‘hortas’ (vegetable gardens) and ‘courelas’ (very small agricultural holdings) between peasant houses with minimal dwellings for the new working-class population (Marat-Mendes et al., 2023).
“He went up the Mirante alley, whistling. There were farms, facing carved valleys and enticing views. The high bright sun made white walls whiter and the faint vine leaves revived with golden reflexes. But Gineto did not fear the afternoon light. He was sure the foremen would not be watching, among the orchards, as the best fruit had already been picked. The boy from the tilery knew about harvests (Gomes, 1974 [1941], p.16)
This description belongs to Esteiros, a novel by Portuguese writer Soeiro Pereira Gomes (1909 - 1949), published in 1941, when the leap from a rural territory to an industrialized one started to be more clearly felt around Lisbon. Until then, this area had been a rural blanket of agriculture and forestry, still heir to the ‘Termo de Lisboa,’ the hinterland surrounding and feeding the capital:
“Proximity to Lisbon meant that lands were carefully exploited, either by the small ray of peasants in the region, the Saloios (…) or by farm servants and foremen, since they were mixed recreational and agricultural units. The farms, so typical of the Lisbon outskirts, remain up until today as determining factors underlying the forms which the upcoming periurban urbanization came to take on.” (Mattoso, Daveau & Belo, 2017 [1998]), p.531)
A hallmark of Portuguese Neorealism, Esteiros has shocked readers ever since its first edition because of the despairingly minute description of child-labour and poverty in the surroundings of Lisbon. The novel takes place in Alhandra, a town which was part of the industrial chord that was taking shape between the eastern end of the city of Lisbon and northwards, towards Vila Franca de Xira, a place which bears witness to the changing social (and territorial) composition of the capital’s outskirts. Most of this territory was limited by slopes. However, near the Tagus riverbed, a continuous strip was available to place industrial facilities, most still standing today, some abandoned others still running.
The process of proletarization is marked clearly on the territorial evolution of this suburban chord, with the surviving farmsteads accounting not only for how recent the industrialization phenomenon is, but also for how limited it was - at least in comparison to other European regions (Hobsbawm, 1994; Varela and Demier, 2015). This was pivotally affected by the 1945 Law for Industrial Development and Reorganization (Lei do Fomento e Reorganização Industrial, DL 2005, March 14th, 1945). Beyond protectionist laws, it promoted sectoral conglomerates and large corporations controlled directly by the State. This epitomized the economic control exerted by the New State (Estado Novo), the Bonapartist dictatorship that began in 1933 and which, after a decade of protecting the interests of the rural land-owning bourgeoisie, slowly started to accept the need to promote at least a moderately developed industrial fabric (Rosas et al., 2020).
In 1946, architect Étienne de Groër (1882 - 1974), the author of the Lisbon City Masterplan (1938-1948) and of the Urbanization of its westwards expansion (Costa do Sol, 1934-1946), was enlisted with the design of an industrial chord between Moscavide (in Loures) and Vila Franca de Xira. The result was the proposal of the “Anteplano de Urbanização de Moscavide a Vila Franca de Xira” (Urbanization Foreplan). Gröer’s strategy was very similar to that of Costa do Sol, designing an extensive territory anchored on a number of towns and villages to be consolidated and extended, protected from merger by rural buffers. Additionally, preexisting rural settlements were identified and protected with a specific rural regulation, precluding urbanizations (Marat-Mendes, 2009; Marat-Mendes et al., 2021). It was precisely this model that Groër applied in the northeast chord. This did not imply a deep change in planning strategy. From Moscavide to Vila Franca, 13 new towns were assigned for expansion.
However, because this strategy was approved as a Foreplan rather than a Plan, it did not enable municipalities to proceed with the compulsory land purchases that were necessary to implement it (Lôbo, 1995). Thus, while in Costa do Sol municipalities were obliged or empowered to follow the regulation, and the plan was fully realized, the northeast extension cord only episodically followed Gröer’s Foreplan. It was dependent upon the approval of Urbanization Plans to be developed for the settlements themselves. Several were produced but few were approved and not much was implemented. Many urbanizations were executed by industrial owners, to house their workers. This happened at Bobadela, Pirescoxe, Póvoa de Santa Iria, Alverca, Sobralinho and Alhandra, but the degree to which these industrialists’ developments were in accordance with the Gröer Foreplan varied greatly.
Aside from neighbourhoods that did not follow Gröer’s urbanization model, much of this territory ended up occupied by the spree of illegal housing construction, which from the 1960s onwards became a key force in the suburbanization of the Lisbon region (Freitas, 1961; Costa Pinto & Guerra, 2019). This spree of unregulated construction eliminated agricultural holdings and gave rise to regular land subdivisions filled with buildings of a highly varied morphology, from individual minimal houses to tenements with several floors.
The 1960s socio-economic and technological shifts in Portuguese society and its labor market granted Lisbon and its surrounding municipalities the opportunity for new urban forms, catering to the newly arrived workforce composed of former peasants, but determined by the interests of landowners and developers, both legal and illegal. Newcomers sought industrial jobs but carried along features of rural habitus that are still present, even after the rapid erasure of rural activities in the Lisbon periphery, producing some ambiguity in these new settlements, which is particularly expressed in the occupation of backyards and vacant land with horticultural gardens (Marat-Mendes et al., 2021).
2.1 Memory and place identity
History, memory and identity are paramount contemporary problems. Western metropolitan cities achieved gargantuan proportions and concerns for sustainability suggest their growth must be halted and suburbanization contained. It is within the existing city that key interventions have long been promoted, for restructuring, architectural refurbishing or social and cultural reappropriation (Portas, 1985). In this effort for transformation of urban form, questions pertaining to conservation naturally arise. In a sense, the key question is: in the process of modernizing a territory, what should be retained from the past, and how?
Premodern buildings and settlements - or at least their façades - have acquired a considerable degree of protection, although 20th century constructions are often demolished. On the other hand, several authors have studied how contemporary society, culture and aesthetics have problematized the issue of historical time. Lipovetsky (2004) submits that the drastic shifts in labour, leisure and individualization have all multiplied subjective conflicts within our relationship with time. This process causes an intensification of consumerism, existential anguish and longing for rejuvenated experience, a permanent struggle against the ageing of sense (Lipovetsky, 2004).
All these shifts, adding to market deregulation, globalized finance capital and the waning power of the State, have a decisive influence upon urban form. In the main Portuguese cities, real-estate interests have become the key actors in shaping urban transformation, reclaiming urban centres for developing luxury housing and tourist rentals. Notably in Lisbon, whose centre is mostly made of buildings from the 18th century onwards, façades are obsessively preserved to maintain a sense of the picturesque, while interiors are demolished and replaced with poor-quality redevelopment (Seixas & Antunes, 2019). Turned into a scenario for touristic social media, the Lisbon city centre confirms Lipovetsky’s claim that antiquity and nostalgia became selling points. This approach, somehow forging the architectural and urban past, now seems to be the key strategy for urban intervention. But must the past be doomed in our own time to serve as marketing strategy, allowing cities to compete among themselves as medieval City States (Schoffham, 1994)?
To answer this question, we may need to remind ourselves of how historical artifacts and monuments have come to be understood as they are. A key discussion of this issue was prompted by Alois Riegl (1984 [1903]), who identified in the Renaissance the first clear distinction between historical and artistic value. Indeed, although it was in the Carolingian Renaissance that aesthetical models from Classical Antiquity were referenced and interpreted consciously for the first time (Hauser, 1958), it was in the 15th century Renaissance that the current status of the historical monument began taking its modern shape. The notion of development is central to the modern conception of history and thus we long to preserve what bears witness to particularly remarkable stages of human development (Riegl, 1903). This preservation is however quite complex in its relation to social and cultural values, especially in terms of urban policies within a capitalist or competitive dynamic.
For Riegl, there are several types of values associated with monuments, but here we are interested in what he calls ‘age-value’, which is recognizable by everyone for its imperfection, lack of integrity of tendency for dissolution of form under the effect of natural or mechanical destruction. Riegl predicted that age-value would become central throughout the 20th century, because this era would be marked by the desire to apprehend all experience subjectively, i.e., for its impact upon the sensibility or consciousness of the subject. By appreciating the passage and effect of time, age-value turns the modern subject into a witness to the necessary cycle of creation and destruction. Thus, instead of promoting conservation, age-value celebrates decay, a process through which ruins become increasingly picturesque, while also denouncing their belonging to a bygone time.
The interest in ruins and cycles of creation and destruction was paramount in the proto-Romantic movement ‘Sturm und Drang,’ with its typical paintings of shipwrecks and catastrophes (Hauser, 1958). This aesthetic comes to full dramatic expression in Romanticism, in masterpieces such as Theodore Gericault’s ‘Raft of Medusa’ (1818-19) or Eugéne Delacroix’s ‘Death of Sardanapalus’ (1844), or the melancholic landscapes of Caspar David Friedrich (example, Figure 1). Romanticism was grounded on a hypersensitiveness to historical continuities, to the conscience that we and our culture are part of an eternal flux and that our intellectual life is transitory (Hauser, 1958). Standing at a time of dissolution of class barriers, Romanticism expressed a new society and worldview no longer interested in absolute values but rather in their relativity, frailty and historical limitations (Hauser, 1958; Clark, 1976).
According to Arnold Hauser (1958), modern art owes its exuberance, unrestraint and complexity to the sensitiveness developed in Romanticism. Perhaps it is because of this line of development that Riegl’s (1903) essay, written at the beginning of the 20th century, predicted so clearly much of our emotional attitudes towards the remains of premodern life.
Cities and other settlements underwent this complex process of becoming invested with values - historical, artistical, of age - especially as urban property became a lucrative business and urbanization started to spree, eliminating preexisting spatial structures. Everywhere in the West, cities densified, towns became satellites to main cities, and villages became suburban towns. The spatial fabric around cities, especially in metropolitan regions, often became unrecognizable. In this context, the premodern settlements ended up representing a connection to history and were often regarded as the elements which more clearly represent place identity.
2.2 A morphology of habitat?
The specific study of the rural habitat constituted an important hallmark for French Geographers (Stone, 1965). It stimulated an approximation of geographers from distinct methodological approaches and interests, soon joined by sociologists and planners. This is quite important, considering that in Portugal, between the 1930s and the 1960s, many young professionals, including architects and urbanists, had received part of their education or specialization in France (Marat-Mendes & Cabrita, 2015; d’Almeida et al., 2023). Moreover, they were well aware of works produced in different disciplinary areas, from sociology to geography (Marat-Mendes & Cabrita, 2015) as increasingly clear from the development of the Portuguese architectural press and architectural research (d’Almeida et al., 2021; d’Almeida et al., forthcoming).
Similar lines of inquiry were launched in Portugal earlier but did not achieve scholarly solidity comparable to the international context until the work developed by geographer Orlando Ribeiro (1911 - 1997). In 1938, he discussed the topic - The Study of Rural Habitat in Portugal - at the International Union of Geographers, in Amsterdam, after having translated and adopted Albert Demangeon’s (1872 - 1940) methodological approach, testing it in the Portugal mainland (Marat-Mendes & Cabrita, 2015). The study kickstarted by Ribeiro was never completed, for undetermined reasons. The post-WW2 period dictated new trends and priorities, including for geographers. Meanwhile, Rural Habitat studies had inspired a new generation of Portuguese architects to ‘read’ the Portuguese rural landscape, through a morphological lens (Marat-Mendes & Cabrita, 2015). This interest was shared in international architectural forums, most prominently the CIAM X Congress, held in 1956 at Dubrovnik (Marat-Mendes & Cabrita, 2015; Baía, 2020). There, the Portuguese team of architects Viana de Lima (1913 - 1991), Fernando Távora (1923 - 2005) and Octávio Lixa Filgueiras (1922 - 1996), along with students Arnaldo Araújo (1925 - 1982) and Carvalho Dias (n.1929), presented their study on the theme of Rural Habitat (Lima et al., 1959; Baía, 2020). Their work provided a critical perspective from the territory to the dwelling scale, while proposing a design for a specific type of human agglomeration: the habitat.
The work of Orlando Ribeiro was also pivotal to this new generation of Portuguese architects for the development of the Portuguese Survey on Regional Architecture, started by the Portuguese Architects’ Union in 1955, which contained part of the work presented by the architects at the X CIAM congress (AAVV, 2004 [1961]; Marat-Mendes et al., 2021). The team of architects who collaborated on the survey in the specific region of Estremadura (including Lisbon and its region), included Nuno Teotónio Pereira (1922 - 2016), António Pinto de Freitas (1925 - 2014) and Francisco Silva Dias (n.1930). Teotónio, the senior member of the group, after concluding his architecture studies at the Faculty of Fine Arts in Lisbon, also attended Orlando Ribeiro’s lectures at the Faculty of Letters of the University of Lisbon.
The rural habitat indeed points out the important task of accounting for the morphology of those elements which are not necessarily built (land-uses, cultivation types, agricultural equipment, etc.) but which are fundamental to the functions and forms of rural settings. However, despite the enthusiasm of 1960s architects to register in full detail the conditions of rural habitats, in all its domains, upon publication, most attention was turned towards architectural forms, i.e. the built aspect (Marat-Mendes & Cabrita, 2015; Marat-Mendes et al., 2021). Consequently, other specific domains of the rural habitat were neglected, contributing to an erasure of the memory or understanding of specific uses and functions, and inherent forms, such as those of agriculture. More recently, research on urban sustainability suggests that, in the future, agricultural uses should become more frequent in cities themselves (Reynolds, 2009; Marat-Mendes et al., 2021) which demands greater acknowledgement of this type of land-use. Here, we seek to retrieve this aspect in urban analysis by focusing not on form alone, but also on what Spiro Kostof (1991) called ‘urban process’, i.e., the set of institutions, social forces and movements that determine the emergence, transformation or elimination of urban form.
3. Pirescoxe: the urban process of a metropolitan village
Not far from the Loures municipal threshold with that of Vila Franca de Xira stands Pirescoxe (or Pirescouxe, Pires Coche, Pirescôxe, Pirescoche, Piriscouxe, Piscoxe, or Periscoxe), a hamlet belonging to the civil parish of Santa Iria da Azóia. It is nearly indistinguishable from its neighbouring towns and villages, although between it and S. João da Talha there is a ridge, lushly filled with trees, vegetables and bushes. The hill rises from the riverfront, continuously occupied with industrial facilities, some standing out for their size or architectural design: the Sidul Sugar Factory, the Olá Ice Cream Factory, the Valorsul Waste Management and, on the opposite side of the N10 motorway, Saint-Gobain Glass Factory (former Covina). Most did not exist in the mid-20th century (Figure 2). At this time, the Loures territory was characterized by the rural landscape and, with some taverns and ‘hortas’ used locally and as leisure destinations for the population of the capital (Brandão & Remesar, 2000).
3.1 The Castle farmstead and the village
The vegetation species found even today in Pirescoxe witness the past of this territory, as depicted in the vision of Gineto from Esteiros, in nearby Alhandra. Until the mid-20th century, the Quinta do Castelo (Castle Farmstead) in Pirescoxe was surrounded by agricultural exploration of fruit and olive trees, essential elements in the diet of the capital's inhabitants (Marat-Mendes et al., 2021). D. António de Castelo Branco (c.1645 - 1696) described, in 1668, the property of the Counts of Pombeiro in Pirescoxe as a “ruined castle, some cliffs, an olive-oil mill, large extension of olive trees, sowing land, flatland, sea, pastures, (…) hills dominated by olive trees, down to the banks of the Tagus” (quoted in Ponte, 2013, p.19). Indeed, a recent exhibition conducted by local associations and academic research has led to the identification of some registered land transactions, which allowed an approximate sketching of a tract of land which belonged to the morgadio (noble rural estate) of the Castelo Branco family, although it may not cover the whole boundaries of the said morgadio (Figure 3).
The ‘Castle’ thus seems to have had no defensive function, so a more accurate description may be that of an agricultural manor. It dates back to the 15th century, but its current configuration is the result of numerous changes over the centuries, constituting
“(…) a typical stately home of the Portuguese nobility of the late Middle Ages, a status that is well expressed in the aesthetic and functional duality between the image of strength and power that its promoters intended the monument to transmit, and the convenience of a residence adapted to an increasingly demanding nobility.” (Noé, s/d).
The construction over the centuries makes the object, prior to refurbishing, look startingly incoherent (Figure 5). Indeed, the Pirescoxe Castle is a set of buildings arranged around a walled courtyard. Next to the entrance door of the complex stands the cone-shaped tower of the kitchen chimney, an independent structure for security against possible fires (Ponte, 2013), reminiscent of the chimneys of the Palácio da Vila, in Sintra. The smaller constructions include millstones and a winery, structures to support the vineyard and cereal production of the farm. The west-facing building, with two floors connected by an external staircase, forming a short tower, was likely occupied by the chamber, the family's most intimate living space, a multi-purpose space, unfolding into a bedroom, a reception lounge and dining premises. Before the reconstruction, these elements, as well as indications of stone walls, or ruins, constituted a group that only gained cohesion due to its arrangement around the patio. Photographs from the 1990s show fiberglass tile huts protecting agricultural implements, clear signs of decay and neglect. Its surrounding areas lacked any landscape treatment. Interestingly, in the archaeological work, no more buildings were found around the castle, suggesting that farm workers resided outside the property's enclosed space.
Their location was most likely the hamlet of Pirescoxe, what is now its older centre, slightly uphill to the north. It forms a triangular shape, with a square in the center, partly occupied with small houses. The original shape of the Pirescoxe village is developed as a triangle and it is densified before expanding. In his pivotal study on the urban development of the town of Alnwick, M.R.G. Conzen (1960, p.18) proposes that its centre, also a triangle, “must have been originally one open space (...) suited [for] a pastoral economy needing protection for its stock at night”. While Pirescoxe arose in a vastly different time and geographic context, the explanation that this space was usually for food-production seems likely. The original shape can be seen in the aerial photograph of 1958 (Figure 3), where the triangle, detached from the road, creates a yard with horticulture, continued by a strip of gardens extending to the southern ridge, while most of the territory is occupied by large groves.
From the settlement, which is now quite changed, we find on the west front a set of small single-story houses, with windows and stonework doors, certainly the original typologies which defined the square.
The village houses are in characteristic Saloio (rural) style, arranged in rows, forming the sides of the triangle, whose definition was increased by the addition - with similar construction techniques - of working-class minimal houses (Borges & Marat-Mendes, 2022). Thus, despite their later construction time, they still present the typical features of Saloio architecture (Cabrita, 2008), which “consists of a single floor, following a simple scheme - divisions built in succession, open to each other - producing the characteristic plant within an elongated rectangle” (AA.VV., 1961, p.104). Similar characteristics can be found in the oldest houses in Pirescoxe, although many of these are currently derelict.
3.2 Urban development and industrialization
The modern rural and industrial identity of Pirescoxe’s spatial structure is intrinsically linked to the memory of demographical change brought on by labour dynamics. In the second half of the century, industrial development brought in a new population, often coming from far away for seasonal agricultural labour and settling into very poor accommodation in places they had no emotional links with (Salgueiro, 1977; Marat-Mendes et al., 2021).
Anticipating this type of demographical change (prior to its confirmation) Gröer’s 1947 Foreplan established the infrastructure of the territory, setting a large urbanization area merging the villages of Pirescoxe and Via Rara to Santa Iria da Azóia into a larger town, with a surrounding rural buffer and a large industrial estate on the waterfront. But the territory told a different story from the start, since the first modern spatial structure actually stemmed from the factory and not around the existing urban core.
In the late 1930s, the Covina glass factory was installed in the lower end of the Pirescoxe slope, over a former area of ploughed land between the Tagus and the National Road. In 1952, the company made the first attempt at building a housing estate for its workers, hiring for that purpose architect Carlos Rebello de Andrade (1887 - 1971) and purchasing a land tract from the olive grove of the Castelo Farmstead on the opposite side of the National Road. However, due to administrative inertia, this did not materialize. A second attempt dated to 1958, with a design by Fernando Costa Belém (n.1924). Although some of its buildings were later erected, this proposal did not materialize, either. Finally, in 1967, the construction of a set of modern semidetached houses for the workers of Covina was launched, as designed by Costa Belém, but placed mid-slope, with the original land used for an expansion of the factory. Between the industrial and the housing estate, a large olive grove was maintained, under the advice of landscape architect António Vianna Barreto (1924 - 2012). Afterwards, Covina started the construction of a set of tenement buildings, this time with design by architect Fernando Torres Bastos de Morais (n.1935).

Arquivo Municipal de Loures, Processo nº 3507, f.273
Figure 11 Tenements from the Covina Housing Estate
The beautiful landscaping of the estate was still the result of the work of Vianna Barreto. Only the written report was recovered from this project, which was guided by key ideas concerning the choice of natural species:
“In the presentation of the project, there was a kid talking about the use of the species of our Flora and the framework (…) I tried to justify the use of our species, in the appropriate places, according to their characteristics and the environment. It was the fastest, most economical, ultimately sustainable way of doing what was intended.” (Barreto, 2011, p.63).
In the project, distributed between the lower and upper levels, facing west, ending in the settlement of Pirescoxe, one encountered a predominance of fruit trees, both for human and animal consumption. These included hawthorn (Gleditsia Triacanthos), blackthorns (Prernus Spinosa), which were used to avoid the possible monotony of the native landscape, creating points of reference in space. The hillside is populated by olive trees (Olae Europae) of different ages, heights and volumes, serving as a green buffer between the factory and the working-class neighbourhood. One of the olive trees maintained at the northern end of the Covina Housing Estate is now over 2860 years old, which makes it the oldest recorded tree in Portugal (Madrinha, 2016). The protection of the green heritage of the slope allows greater stability of land, preventing landslides.
3.3 The planning attempt
The opening of the new Covina factory in 1969 prompted urban planning and the development of infrastructure and communications in this territory (Pinharanda, 1969).
The Pirescoxe settlement, which had been completely cut off from the Covina Housing Estate, had a limited ability to respond to the large migratory flows to industrial centres and consequently to house workers and their families. This caused a severe housing shortage in the nearby villages and hamelts, like Pirescoxe, Santa Iria de Azóia and Via Rara, which prompted two projects for establishing in this area two sets of Economic Housing, following similar suburban operations in Queluz and Oeiras (Costa, 1959). Indeed, these two developments seem to have been confirmed, the one in Queluz finished in the late 1950s, and the one in Oeiras slightly later. While in the former, only single-family semidetached houses were built, in the latter, there was already a mixed-development approach, with an area for cottages and another one for four-floor tenements.
For that purpose, in 1958, architect Fernando Lorenzini Borges Campos (n?) was assigned the design of an Urbanization Foreplan for Pirescoxe and its neighbours, as a result of his being in charge of revising the industrial zoning of Gröer’s general Foreplan as well. However, as Lorenzini was abroad, this task was given to another architect, João Nunes (n?), who proposed a merger of Pirescoxe and Santa Iria de Azóia (the larger village), with Via Rara constituting a sort of satellite beyond the highway access road, which was being conceived at the time (Costa, 1959). The zoning plan in this proposal allows us to see that the strategy pursued in Pirescoxe was drawn to be similar to Oeiras, with mixed development, although here the two areas were separated: the tenements located on the slope of the Castle Farmstead, while the cottages should be placed on the northeast, in part of the old Cativo Farmstead (Figure 12).

Arquivo Municipal de Loures, Processo nº 5188/1955, f.16
Figure 12 João Nunes, Urbanization Foreplan of Piscouxe, Sta. Iria da Azóia e Via Rara (1958)
However, this plan was not successful. It was downright rejected by the Urbanism Services of the Loures Municipality, with a thorough critique presented by municipal architect Barata da Rocha (n?) where all aspects - from the equipment distribution, to the zoning of housing morphologies and densities, to the infrastructural layout were denounced (Rocha, 1959). The delay in reaching a definitive model for urbanization may explain why the Economic Housing estates never came to pass. Indeed, after the completion of the Covina Housing Estate, development in Pirescoxe was mostly ensured through individual licencing for privately built tenement buildings, most of which covered a single or no more than a few plots. Several plans for urbanizations were also submitted to the Loures Council for Pirescoxe, but many reasons, notably the absence of an integral Urbanization Plan for the area, ended up blocking their implementation.
The proletarianization phenomenon of 1960s and the arrival of refugees from decolonization after the 1974 Revolution accelerated the processes of transformation of the village landscape, particularly in the densification of the urban fabric resorting to informal housing areas (Salgueiro, 1977; Henriques, 2016). With no approved planning instrument that could be considered up to date, in Pirescoxe, unplanned residential areas became the most common solution to this problem, producing housing settlements of illegal outset (Áreas Urbanas de Génese Ilegal - AUGIs). The results were the Cativo and Courelas neighbourhoods (Figures 13 and 14). Both are land subdivisions with continuous series of plots, incepted into regular gridirons bounded by property lines, built ad hoc with different types of structures, from individual cottages to tenements.
In the 1990s, the municipality of Loures began to convert the AUGIs, launching processes of legalization. In the neighbourhoods of Cativo and Courelas - both of private initiative - the goal was to consolidate urban perimeters and to increase a sense of local identity, a relatively unproblematic process, when compared to other AUGIs existing in the same municipality (Henriques, 2016).
This highly uncoordinated form of urbanization has resulted in not only several problems regarding the built areas - namely the monofunctional character and the impaired ability to provide quality collective spaces - but also in the desultory elimination of nearly all rural remnants and all agricultural activity (Marat-Mendes et al., 2021).
3.4 Again, the Castle: the Quinta do Castelo Urbanization
In 1996, construction company Obriverca collaborated with the Loures Municipality to consolidate Pirescoxe, with plans to refurbish the Castle associated with those to urbanize its farmland, in the construction of the Quinta do Castelo Urbanization. Both projects were coordinated by architects Francisco Silva Dias and Tiago Silva Dias (n?), the former with a notable experience as an urban planner, for instance in the Chelas Urbanization Plan (Lisbon, 1960-1972) and the Masterplan for Santo André (1972-1985), a New Town for workers of the Sines Port and industrial area.
An archaeological survey by Ana Raquel Silva (n?) and Rui Jorge Mataloto (n?) informed the refurbishing of the Castle, and its ruins became elements for inflating a sense of history into the everyday life of the inhabitants of this “exploded periphery”, while allowing the building itself to “die with dignity” (Ribeiro & Canelas, 2006, p.66). Exhibition and leisure spaces for the local community were created, but all interventions were reversible and merely sought to ensure safety, with an unequivocal “mark of contemporaneity” (Figure 15), highlighting the picturesque structure as artistic “image-memory” (Ribeiro & Canelas, 2006, p.66).
In the urbanization plan for the farmstead, led by the private developer with about six hundred new dwellings, the approach was very different from that of the Castle, complementing it. At the time of this intervention, the Castle farmstead was vacant and derelict, with no relation to the urban structure of the hamlet nor to any farming operation. Virtually fused with the old core, the Cativo and the Courelas neighbourhoods occupied the descending slope and came close to the Covina Estate on its northern end, but the latter remained visibly detached and Pirescoxe still lacked an integral structure (Figure 2).

In Ribeiro & Canelas, 2006, p.66.
Figure 16 Francisco Silva Dias (coord), Plano da Quinta do Castelo (1995-2000)
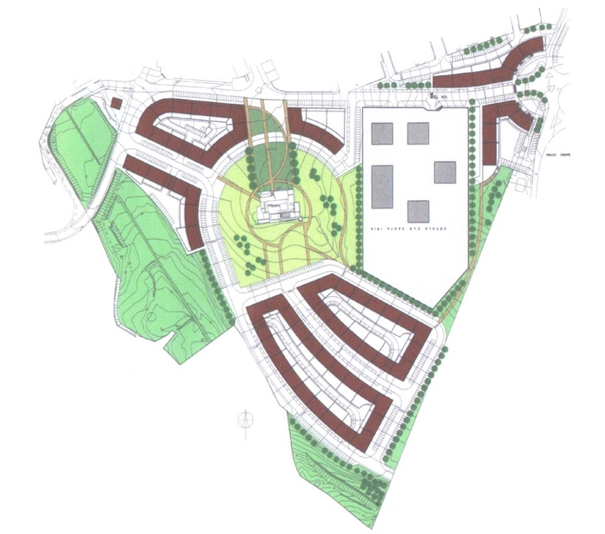
The Quinta do Castelo Urbanization Plan (Figure 16) does not merely occupy the farmstead: its whole morphology seems designed to cohere the disperse fabrics formed in the previous decades. A grand gesture with dramatic input on the landscape, the plan proposed two irregular blocks of five or six stories, modelled after the Lapa neighbourhood in Lisbon, with the blocks perpendicular to the river. Three streets were created, directly linking the Covina Estate to the Castle. Also embraced by the grand structure is the Santa Iria da Azóia Elementary School, built in the early 1990s, crowned by two crescent-shaped four-floor slabs, suggesting an entrance to the village for those arriving from the riverside.
Yet the most significant part of the urbanization plan is the larger crescent on the hilltop (Figure 17), formed by three slabs. The Castle, surrounded by olive trees - a constant presence in the landscape - becomes a place for social gathering. Functionally, the ground-floor galleries introduced a considerable amount of commerce to the area, the large garden provided a graceful promenade space, while the crescent shape seemingly creates a temenos, a protected precinct that highlights the presence of the Castle. Literally framing it and organizing around it the key connections between all the preexisting urban fabrics of Pirescoxe.
4. Discussion and concluding remarks
Pirescoxe is currently a village of great architectural, morphological and landscape diversity. Despite the complex conditions of its fast-paced development, it constitutes a very interesting case of a metropolitan village, a place where a past without conventional heritage was rendered visible, or at least symbolically present, bringing a sense of completion to modern urbanization, even if this was only a late development.
Industry advanced close to the roads, the railway and the river. Their creation did not look for an organization other than the internal, interrupting greenbelts, or interpenetrating continuum naturale in the urban space (Guimarães, 2013). Industrial growth happened mostly under the orientation of the State but that orientation did not apply to housing, giving rise to the unordered urban sprawl, with fragments of different times and different forms of construction coexisting in often uncoherent ways. Illegal urban development was the ultimate blow to the intention of Gröer to preserve part of the territory as rural and to safeguard some of the agricultural economy that had existed there for centuries: the planning policies in Portugal were undoubtedly ineffective in programming the territory, not only mishandling the shift in demographics, but also in balancing land-use (Marat-Mendes et al., 2021). That happened in Costa do Sol and between Moscavide and Vila Franca de Xira, with greater impact on the latter, since the plan was never approved, leaving most of the territory without effective planning.
Presently, some of these factories still function, while others were deactivated or even demolished. Yet more than factories, farms remain as underacknowledged elements of memory, often representing instruments for the local population to create local identity. An agricultural manor and its cultivation areas ended up generating a new centre, an element that organizes urban fabrics and provides them with a clearer structure with an agora suggested not just by the Castle itself, but also by its public garden.
The Covina Estate was planned around a symbolical centre devoted to labour, a paradigm which shifted in late modernity: in the Quinta do Castelo urbanization, a new, identity producing centre was created, more in tune with a service economy. The urban structure of the village that grew around agricultural uses, or that of the industrialization era around the factory, no longer represent the dominant social organization, a transformation perfectly signaled by the construction of this new centre.
Autochthonous housing often means that there was or is a considerable freedom in constructing and transforming each house. However, this is not always guaranteed, since the phenomenon of illegal housing in the Lisbon Region has always been a complex business, with several layers of speculators often intervening between construction of the housing and its occupation (Freitas, 1961). However that may be, illegal growth is often - and certainly is here - lacking amenities or distractions, with open spaces limited to unbuilt plots. The landscape quality of Covina and of Quinta do Castelo, on the other hand, are examples of the advantages of integral planning. Yet, considering the scale of Pirescoxe, it must be said that the quality public spaces provided by these two planned housing estates may also serve the residents of the nearby neighbourhoods where public space is rare. The recent opening of the Public Park is also a positive step in this regard.
The refurbishing of the Castle resonates with Riegl’s (1903) notion of age-value, emphasizing decay, highlighting the picturesque structure as artistic “image-memory” (Ribeiro & Canelas, 2006, p.66). The Castle ‘dies’ with dignity by becoming a public centre. Historically, its farmstead played the exact opposite role: Gröer did not include it in the extension area, Covina placed its neighbourhood south of its limits and illegal housing was constructed in continuity from the village downhill, not from Covina uphill. But the housing estate does not falsify the historic importance of the Castle. As Riegl (1903) notices, age-value implies an uprooting of historical value. Thus, the centre of Pirescoxe is drawn not from a traditional central element, but by its precise absence, using the meek presence of the manoral structure as if it were a local landmark.
This use of the Castle as ‘memory’ has an emotional, not historical, appeal. This does not make it whimsical or merely decorative, since it is channeled towards the creation of a collective space of great environmental quality in a place that lacked the usual elements like churches or larger castles. It is a historical centre, not in a literal, but in a symbolic way. The historical centres of Portuguese villages and towns often play an important part in everyday life not necessarily for their historical particularities, but rather for being public places full of social contacts, which contribute to local identity just as much as historical memory.
This practice implies an exercise of visual memory which resonates with the aesthetic and design options that were typical of some architects involved in the 1960s survey on Regional Architecture (Marat-Mendes & Cabrita, 2015). That was the case of Silva Dias, whose work in Pirescoxe denotes a recognition, maybe a visual one, about the human conditions of the site, intensifying its specificities as a habitat. This is a key heritage that new generations have received from the generation of architects who had the chance to participate in the 1961 Survey. It underlines the importance of reading the morphological conditions associated with rural constructions and land-uses. This echoes the study of rural habitat proving its potential as interpretation of the past to imagine the future, thus suggesting a reorientation of our approach. Currently, problems approached in urban design and on morphological research tend to focus on specifically urban settings, thus overlooking a set of spatial elements with critical importance for sustainable habitats. One question which may be posed, though, is: when will these types of project start to apply this sort of creativity to reinventing the agricultural aspect of decayed farms, proposing an alternative to full urbanization?
In a more general way, the question is whether we want to overtake whatever remains of the rural past transforming it with no criteria other than profit-seeking - as was partly the case with Pirescoxe - or if we can sustain a research on the key impacts of changes which already took place to better plan future changes. In this process, memory becomes not a stagnant remnant of the past, but rather a creative source.





























